Casa indipendente in vendita

Caluso, Via Duca Degli Abruzzi - Arè
€ 149.000
6 locali 6 locali
165 Mq 165 Mq
2 bagni 2 bagni

Casa indipendente in vendita

Caluso, Via Duca Degli Abruzzi - Arè

Descrizione annuncio

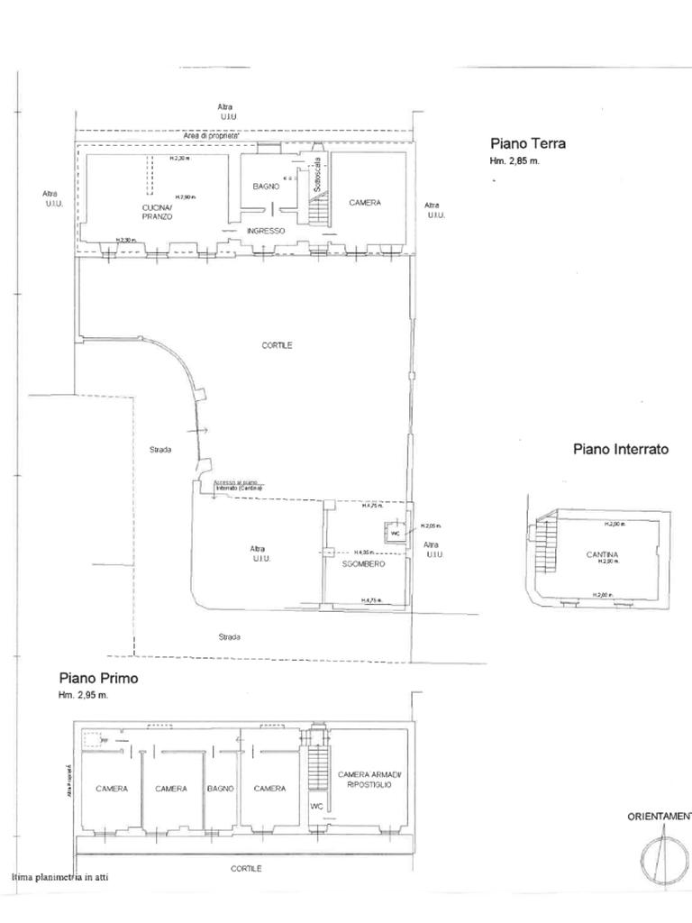
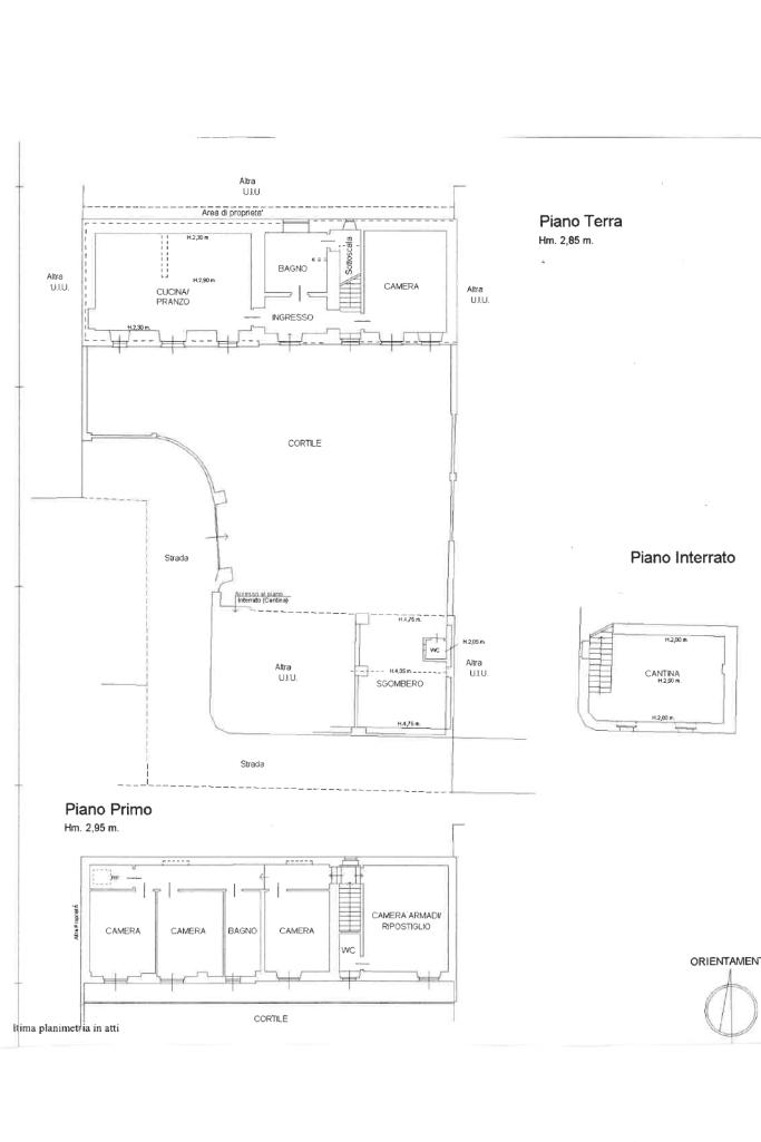
CALUSO; Frazione Are': Casa indipendente disposta su due livelli, completamente ristrutturata nell'anno 1997. Il piano terra dispone di un comodo patio piastrellato con accesso all'abitazione. Dal disimpegno si entra nella zona giorno luminosa e di ampia metratura con soffitto a volta e mattoni a vista. Sullo stesso livello è presente una camera matrimoniale e un comodo bagno dotato di vasca, doccia e ripostiglio. Tramite la scala interna si raggiunge il piano superiore composto da una camera matrimoniale con bagno interno e da tre camere con bagno da ultimare. I quattro locali attualmente sono allo stato grezzo, interamente rifiniti con mattoni sostituiti nel 1997 e con impianti presenti, incluso lo scarico del bagno. Il medesimo livello dispone di un ripostiglio con botola d'ispezione per il tetto. Tutte le stanze del piano primo hanno lo sfogo esterno sul balcone. Gli infissi degli ambienti ultimati sono in legno con doppio vetro e gelosie. Il riscaldamento della casa è alimentato a metano, tramite radiatori con caldaia a condensazione. La canna fumaria dispone di tubo in acciaio che permette di installare una stufa a pellet a servizio di entrambi i livelli. Attraversando il cortile e il giardino di proprietà si raggiunge la travata ad uso autorimessa e deposito per un totale di 60 mq. Completa la proprietà una comoda cantina interrata di circa 30 mq. L'intera abitazione si presenta in ottimo stato conservativo.

Mostra tutto

Nelle vicinanze

Trasporto pubblico Trasporto pubblico
Rodallo
Rodallo
1,3 Km
Caluso
Caluso
2,3 Km
Trasporto pubblico
90 m
Caluso - Rodallo - Stazione FS - N.E.
Caluso - Rodallo - Stazione FS - N.E.
1,3 Km
Ricariche auto elettriche Ricariche auto elettriche
U2 Supermercato Caluso | EnelX
1,5 Km
Studio Caluso S.n.c
2,3 Km
Ristoranti Ristoranti
Gardenia
2,2 Km
Mago
2,8 Km
Mostra tutto

Caratteristiche

Rif.:
61135196
Piano:
Su più livelli di 2
Totale piani:
2
Box:
1
Posti auto:
3
Balconi:
1
Mostra tutto
Prezzo Prezzo
€ 149.000
Rata mutuo Rata mutuo
€ 703 / mese
Proponi il tuo prezzoProponi il tuo prezzo
Immobile valutato con T·Valuta

Classe Energetica

E
E
E
E
E
E
E
E
E
EP globale non rinnovabile:
155.54 kW h/m² anno
EP globale rinnovabile:
0.26 kW h/m² anno
EP invernale del fabbricato:
EP estiva del fabbricato:
Anno di costruzione:
1960
Riscaldamento:
Autonomo
Tipo impianto:
A radiatori
Tipo alimentazione:
Metano

Ti interessa visionare l'immobile?

Fissa un appuntamento  Fissa un appuntamento

Richiedi informazioni

Clicca su Leggi per aprire l'informativa
* Questi campi sono obbligatori

Calcola il tuo mutuo

Semplice e senza impegno
Anticipo

( % )
Mutuo

( % )

pochi semplici passi

inserisci i tuoi dati
Questionario completato
Grazie per aver richiesto un appuntamento senza impegno con un nostro Consulente del Credito e Assicurativo.

Hai inserito correttamente tutti i dati necessari e a breve riceverai una e-mail con un link da convalidare per inviare i tuoi dati.
Affiliato
Caluso Immobiliare Sas
Via Cesare Battisti, 28 10014 Caluso (TO)

Il nostro staff


  • Federica Falciani
    Affiliata
Via Cesare Battisti, 28 10014 Caluso (TO)
Zona: Caluso-Candia C.se- Orio C.se-Barone Canavese
Mostra su mappa
Orari: dal lunedì al sabato dalle 8.30 alle 12.30 e dalle 14.30 alle 19.30 Sabato chiusura ore 19.00
Affiliato
Caluso Immobiliare Sas
Via Cesare Battisti, 28 10014 Caluso (TO)

2025 Tecnocasa Franchising S.p.A. - P. IVA 08365160152 - Via Monte Bianco 60/A 20089 Rozzano (MI). Ogni agenzia ha un proprio titolare ed è autonoma. Privacy policy | Policy utilizzo | Cookie policy