Casa indipendente in vendita

Caluso, Via IV Novembre - Vallo
€ 120.000
7 locali 7 locali
350 Mq 350 Mq
3 bagni 3 bagni

Casa indipendente in vendita

Caluso, Via IV Novembre - Vallo

Descrizione annuncio

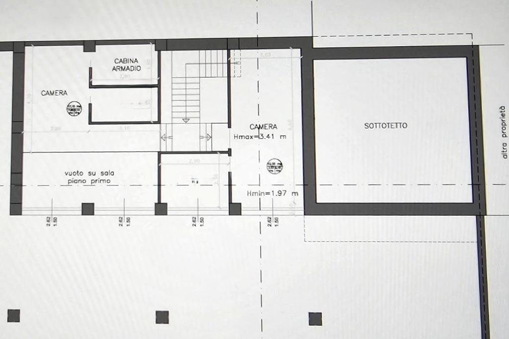
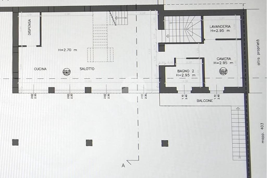
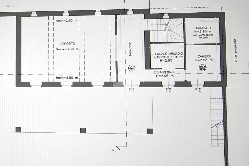
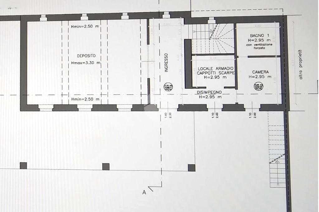
CALUSO - Frazione Vallo: Cascinale di ampia metratura con 700 mq. di cortile privato. Il fabbricato si presenta allo stato grezzo con parziale ristrutturazione eseguita nell'anno 2022 e 2023. La proprietà è dotata di regolare progetto depositato e approvato con costo di costruzione e oneri di urbanizzazione già versati all'amministrazione comunale. Il progetto prevede un'abitazione elevata a tre piani fuori terra collegati con scala interna, già realizzata con certificato di collaudo depositato e approvato. Il piano terra dispone di ingresso su ampio disimpegno con accesso al locale di deposito dal quale si può ricavare una tavernetta di 60 mq. ; sullo stesso livello sono presenti due ripostigli, una camera e un bagno. Al piano primo è prevista un'ampia zona giorno con cucina a vista, una comoda dispensa e sfogo esterno sul terrazzo. La zona notte dispone di camera, bagno e lavanderia. Nel livello superiore/ soppalco si possono ricavare due stanze con cabina armadio e un bagno. Inoltre è presente un locale di sottotetto ad uso deposito. All'interno dell'abitazione sono state realizzate le tubazioni per l'acqua sanitaria fredda/ calda, per il riscaldamento e per gli scarichi dei wc. La metratura interna della casa viene completata da una tettoia di 90 mq. Sul fronte dell'unità immobiliare sono presenti due locali di deposito e un box. L'ampia metratura suddivisa tra superficie coperta e scoperta consente svariate soluzioni ai fini abitativi e permette l'accesso di mezzi pesanti e camper. Si precisa che la proprietà viene venduta nello stato di fatto e di diritto nel quale attulamente si trova. Tutte le opere di completamento, compreso l'allaccio alla fognatura restano a carico della parte acquirente. Il venditore garantisce la regolarità sullo stato presente. Per informazioni e maggiori chiarimenti l'agenzia immobiliare resta a disposizione fornendo tutta la documentazione della proprietà oggetto di vendita.

Mostra tutto

Nelle vicinanze

Trasporto pubblico Trasporto pubblico
Rodallo
Rodallo
1,4 Km
Caluso - Vallo - Chiesa - S.E.
Caluso - Vallo - Chiesa - S.E.
100 m
Caluso - Rodallo - Stazione FS - N.E.
Caluso - Rodallo - Stazione FS - N.E.
1,4 Km
Mostra tutto

Caratteristiche

Rif.:
61127342
Piano:
Su più livelli di 3
Totale piani:
3
Box:
1
Posti auto:
10
Balconi:
1
Mostra tutto
Prezzo Prezzo
€ 120.000
Rata mutuo Rata mutuo
€ 570 / mese
Spese annue Spese annue
€ 0
Proponi il tuo prezzoProponi il tuo prezzo
Immobile valutato con T·Valuta

Classe Energetica

G
G
G
G
G
G
G
G
G
EP globale non rinnovabile:
0.00 kW h/m² anno
EP globale rinnovabile:
0.00 kW h/m² anno
EP invernale del fabbricato:
EP estiva del fabbricato:
Anno di costruzione:
1940
Riscaldamento:
Autonomo
Tipo impianto:
A radiatori
Tipo alimentazione:
Altro

Ti interessa visionare l'immobile?

Fissa un appuntamento  Fissa un appuntamento

Richiedi informazioni

Clicca su Leggi per aprire l'informativa
* Questi campi sono obbligatori

Calcola il tuo mutuo

Semplice e senza impegno
Anticipo

( % )
Mutuo

( % )

pochi semplici passi

inserisci i tuoi dati
Questionario completato
Grazie per aver richiesto un appuntamento senza impegno con un nostro Consulente del Credito e Assicurativo.

Hai inserito correttamente tutti i dati necessari e a breve riceverai una e-mail con un link da convalidare per inviare i tuoi dati.
Affiliato
Caluso Immobiliare Sas
Via Cesare Battisti, 28 10014 Caluso (TO)

Il nostro staff


  • Sofia Tiziana Debernardi
    Coordinatrice

  • Federica Falciani
    Affiliata

  • Sabrina Fasolato
    Coordinatrice
Via Cesare Battisti, 28 10014 Caluso (TO)
Zona: Caluso-Candia C.se- Orio C.se-Barone Canavese
Mostra su mappa
Orari: dal lunedì al sabato dalle 8.30 alle 12.30 e dalle 14.30 alle 19.30 Sabato chiusura ore 19.00
Affiliato
Caluso Immobiliare Sas
Via Cesare Battisti, 28 10014 Caluso (TO)

2026 Tecnocasa Franchising S.p.A. - P. IVA 08365160152 - Via Monte Bianco 60/A 20089 Rozzano (MI). Ogni agenzia ha un proprio titolare ed è autonoma. Privacy policy | Policy utilizzo | Cookie policy